Medway seeks developers for 82-acres of ‘Bottle Cap Lots’

Medway is seeking developers to pitch their ideas for a 82-acre piece of land the subject of an urban renewal plan with an odd history. 

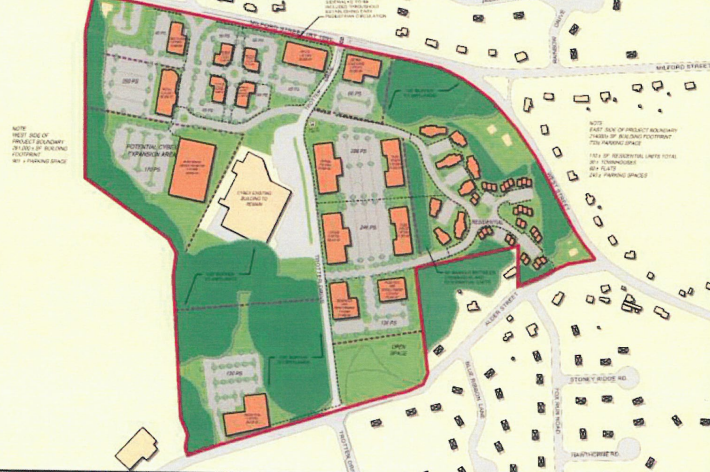
In a request for qualifications issued Thursday, the town asks for conceptual plans from qualified developers to redevelop at least a portion of Oak Grove, a largely undeveloped site on Route 109 just minutes away from I-495. 

The request is in anticipation of a subsequent request for proposal process that the town hopes will result in the sale of the property to at least one developer.

The area consist of 238 individual parcels dubbed the Bottle Cap Lots, which was named as such in the 1920s when Millis soda manufacturer Clicquot Club awarded small 80-by-20-foot parcels of land to customers with winning soda bottle caps.

Originally, there were 1,018 individual lots, with ownership issues muddying the waters of any potential project. Now, most have been consolidated. The town has long eyed the development of the land, but now has a finalized urban renewal plan off which to work. 

ADVERTISEMENT

The area is among the first passers-by see coming into town from Milford off of I-495, and the town is eyeing a diverse mix of uses including residential, housing, business, industry and open space to serve as a gateway.

Proposals are due to the Medway Redevelopment Authority by July 31.

– Digital Partners -