A former warehouse utilized by defunct discount department store Spag’s makes up part of a large Shrewsbury site proposed for major redevelopment. Spagtacular LLC, an entity managed by Shrewsbury-based developer Sam Adams, is proposing constructing a development on 25.5 acres of land at the intersection of Route 9 and Maple Avenue. Split across two separate […]
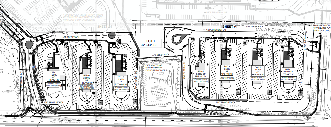
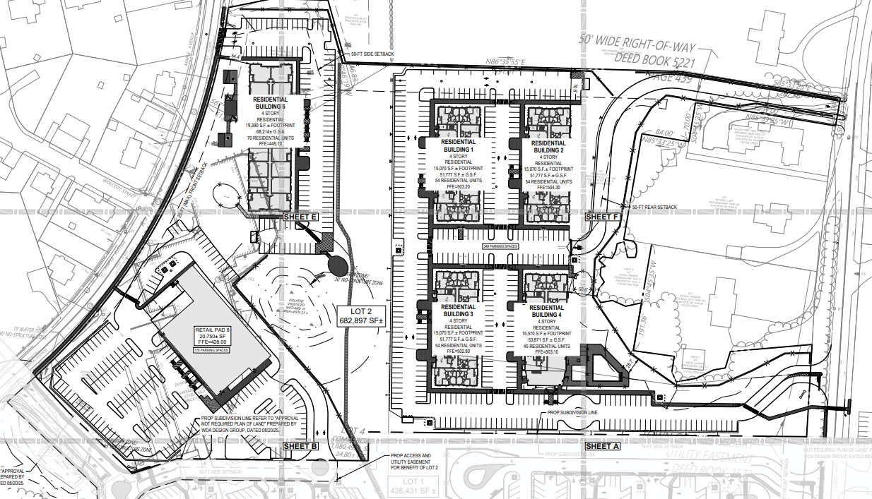
A former warehouse utilized by defunct discount department store Spag’s makes up part of a large Shrewsbury site proposed for major redevelopment. Spagtacular LLC, an entity managed by Shrewsbury-based developer Sam Adams, is proposing constructing a development on 25.5 acres of land at the intersection of Route 9 and Maple Avenue. Split across two separate sites and proposals, Spagtacular’s plans call for the construction of five apartment buildings, a supermarket, restaurant spaces, a car wash, a bank, and other retail uses, according to documents submitted as part of site plan approvals to the Town of Shrewsbury. In total, the plans call for the construction of 321,926 square feet of space. In the northern part of the lot closer to Maple Avenue, Adams is proposing the construction of 270 apartments spread across five, four-story buildings. One of the buildings will be accessible via Maple Avenue, while the other four will be accessible via new entrances connecting to Oak Street.Plans for the northern part of the development. IMAGE COURTESY OF TOWN OF SHREWSBURYAt the site of the former Spag’s warehouse, plans call for its demolition to allow for the construction of a 20,750-square-foot supermarket. The development would include outdoor amenity space, new pedestrian improvements, as well as utility and stormwater management upgrades. The southern site, abutting Route 9, would involve the construction of seven new retail buildings, separated into two groups by a small parcel not owned by Adams, which is the site of the Matthew John Whittall Masonic Lodge. Adams purchased the 25.5-acre site for $4 million in 2013, according to Town of Shrewsbury property records, and has been looking to redevelop the site for over a decade.Plans for the southern part of the development. IMAGE COURTESY OF TOWN OF SHREWSBURYThe property received a 2026 municipal tax assessment of $5.99 million, with the land accounting for $2.8 million of the assessment, and the rest of the value attributed to the warehouse and other site improvements.Other than the existing warehouse and attached parking area, the site is mostly woodland and rocky outcroppings. The 77,480-square-foot warehouse was once utilized by Spag’s, but has sat vacant for more than two decades. Prior to Spag’s, it had been utilized as a manufacturing site by the Chelmsford Ginger Ale Co., according to Spagtacular’s documents. Shrewsbury is holding a public meeting regarding the proposal at 6:30 p.m. on Tuesday at 98 Maple Ave.Eric Casey is the managing editor at Worcester Business Journal, who primarily covers the manufacturing and real estate industries.